Работы, которые входят в стоимость услуги
- Отправка готовой работы курьером или дистанционно
- Техописание на бумаге, заверенное печатью организации
- PDF экземпляр Техописания по желанию клиента.
Перечень документов для услуги
- Правоустанавливающие документы;
- Паспорт заявителя;
- Проектная документация (если имеется).
Сроки выполнения работ и подготовки документа
Процедура подготовки технического описания зависит от сложности объекта и загруженности экспертов компании. В среднем это занимает от одной до двух недель. Этот период может затянуться в том случае, если площадь объекта свыше 1000 квадратных метров и он имеет сложную конфигурацию помещений.
СТОИМОСТЬ ПАКЕТОВ УСЛУГИ
- Вам важна СТОИМОСТЬ работ
- Вам важен СРОК ВЫПОЛНЕНИЯ работ
- Вам важно выполнение работ ПОД КЛЮЧ
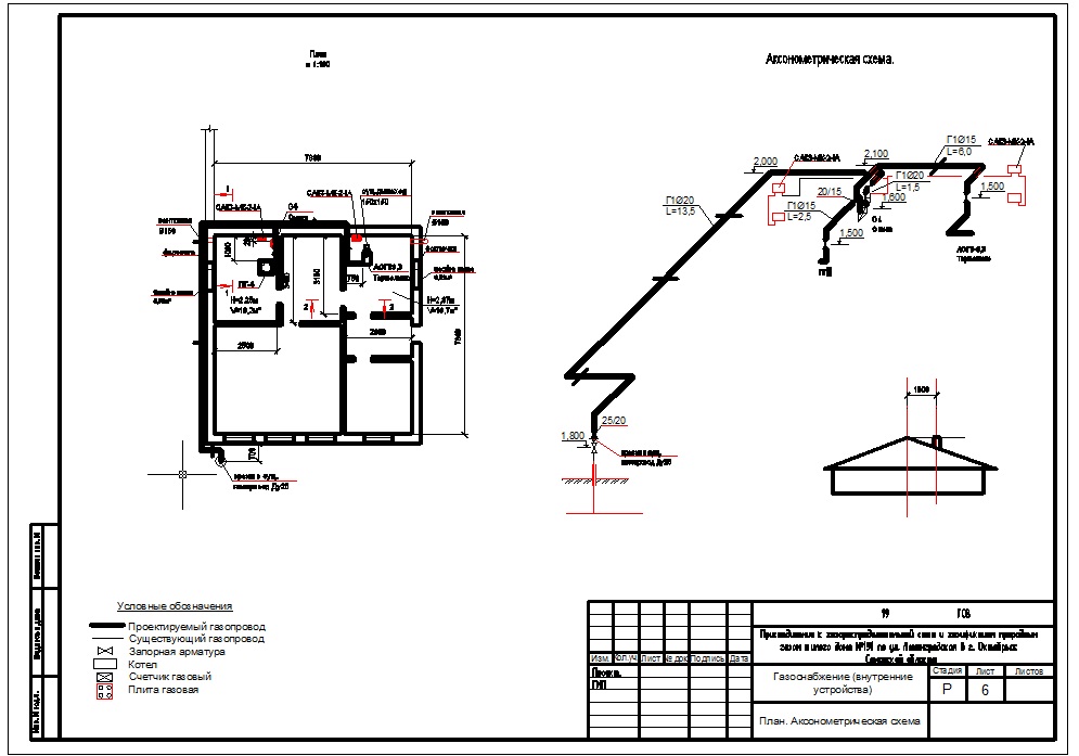
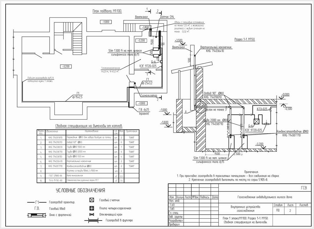
Случаи, когда требуется поэтажный план
- для подведения и подключения коммуникаций;
- ввод объекта в эксплуатацию;
- внесение обновленных данных после реконструкции или перепланировки;
- сверка после сдачи объекта застройщиком;
- ипотека;
- расчет рыночной стоимости;
- оформление страховки;
- сдача жилья в аренду;
- получение разрешительной документации;
- для суда;
- получение экспертных оценок.

Самостоятельно выполнить это невозможно. Данную процедуру имеют право проводить только кадастровые инженеры, имеющие необходимые разрешения. Разумеется инженеры ГЕОМЕР ГРУПП располагают всей разрешительной документацией, а также состоят в СРО.

ТРЕБОВАНИЯ МИНЭКОНОМРАЗВИТИЯ
Требования, которым должно соответствовать техническое описание, утверждены в письме от 05.11.2009 N Д23-3624 "О формах технических паспортов объектов капитального строительства".
Согласно данному письму мероприятия по подготовке технических описания, проводятся с учетом ряда нюансов:
- Заказать услугу может физическое или юридическое лицо, в роли подрядчика имеет право выступать организация, состоящая в СРО.
- Стоимость процедуры устанавливается в каждом регионе субъектами РФ.
- После 2013 года заказать инвентаризацию можно не только в БТИ, но и в других коммерческих организациях, предлагающих такие услуги. Основным руководящим документом для проведения техинвентаризации является Инструкция, утвержденная Приказом Земстроя РФ № 37.
- Согласно постановлению, № 106-ПП, техническая инвентаризация и учет недвижимости в Москве осуществляется только ГБУ "МосгорБТИ".
Этапы выполнения
Разработка технического описания объекта недвижимости подразумевает анализ документов, проведение внутренних обмеров и оформление техописания. Рассмотрим подробнее каждый шаг:
Собственник объекта недвижимости предоставляет исполнителю необходимые документы. Инженер-инвентаризатор изучает полученные сведения, составляет график и план работ. На подготовительной стадии стороны заключают договор подряда и согласовывают техническое задание.
Специалист выезжает на объект и с помощью специального оборудования (GNSS-прибор и лазерной рулетки) проводит необходимые замеры, для помещений измерения производится только внутри. Исполнитель определяет внешние контуры здания, осуществляет внутренние обмеры помещения и фиксирует полученные результаты.
Инженер-инвентаризатор структурирует данные и подготавливает техническое описание в бумажном виде в соответствии с требованиями и передает готовую работу заказчику.
Источник: https://pkk5.geomergroup.ru/uslugi/tehnicheskij-plan/poetazhnyj-plan-dlya-podklyucheniya-gaza/



